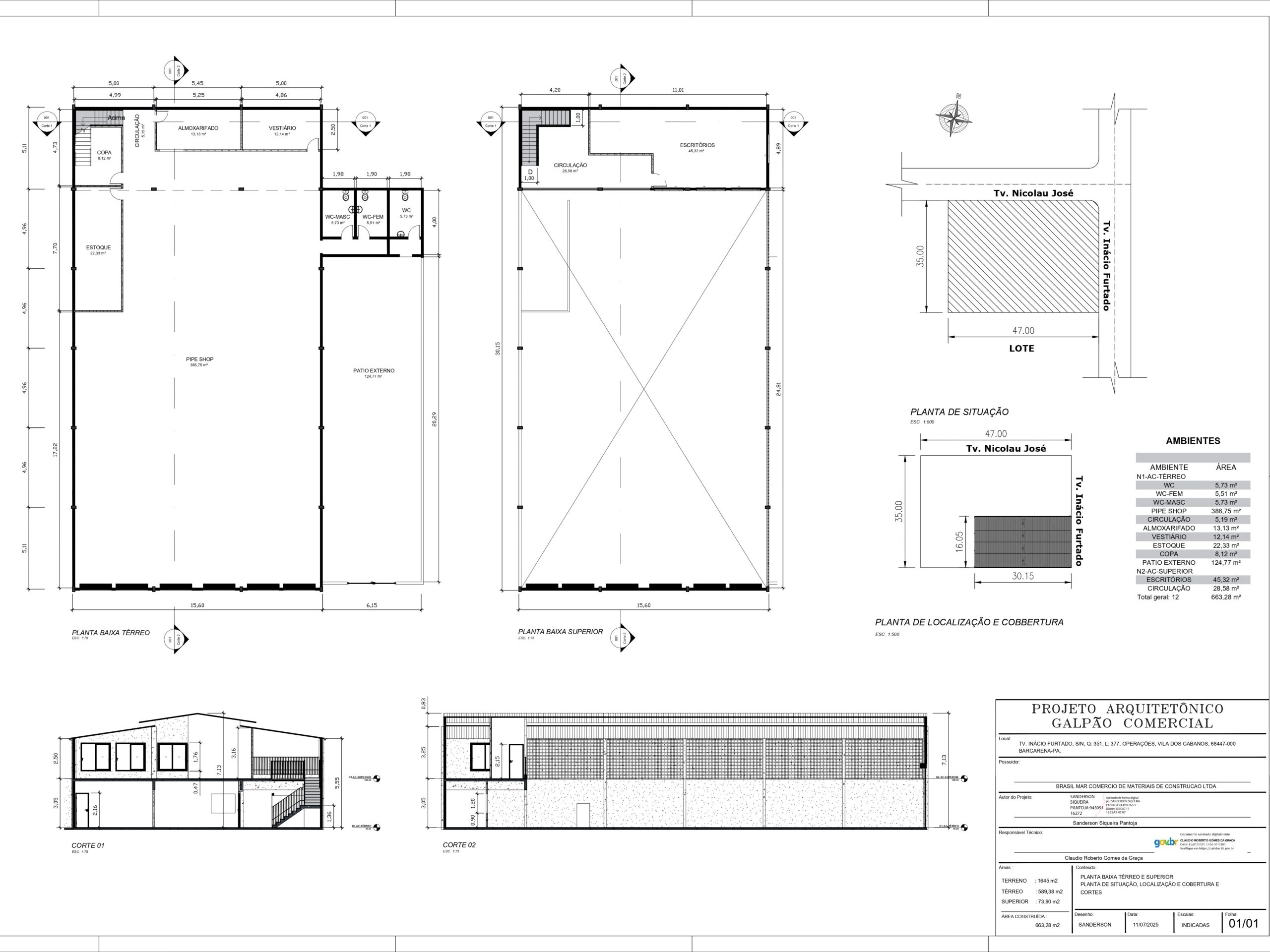
A OSP Engenharia realizou o levantamento arquitetônico e inspeção predial para a empresa Brasil Mar Comércio de Materiais de Construção. O trabalho garantiu a regularização técnica e a certificação de segurança de um galpão comercial de dois pavimentos em Barcarena .
- Levantamento Arquitetônico 3D: Elaboração de plantas baixas, cortes e fachadas detalhadas;
- Laudo de Inspeção Predial: Certificação de integridade estrutural com validade até 2028;
- Análise de Anomalias Estruturais: Identificação e classificação de riscos com ações corretivas;
- Parecer Técnico Construtivo: Documentação técnica para gestão de manutenção predial;
- Emissão de ART: Garantia legal e técnica de todos os serviços prestados.







