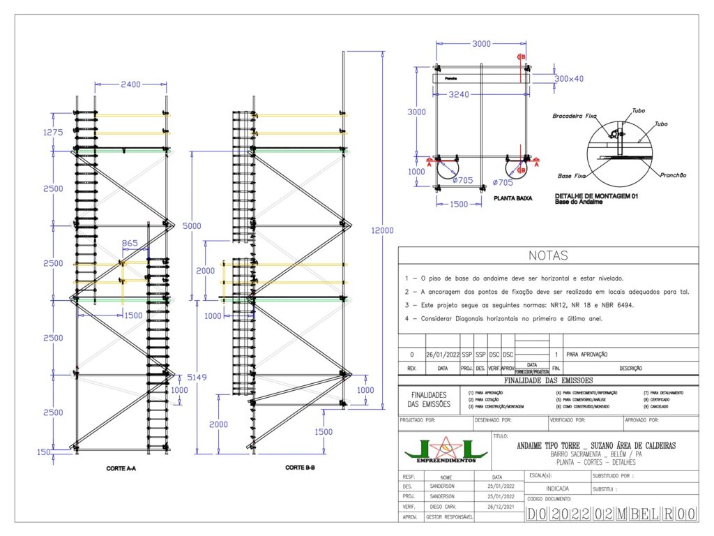
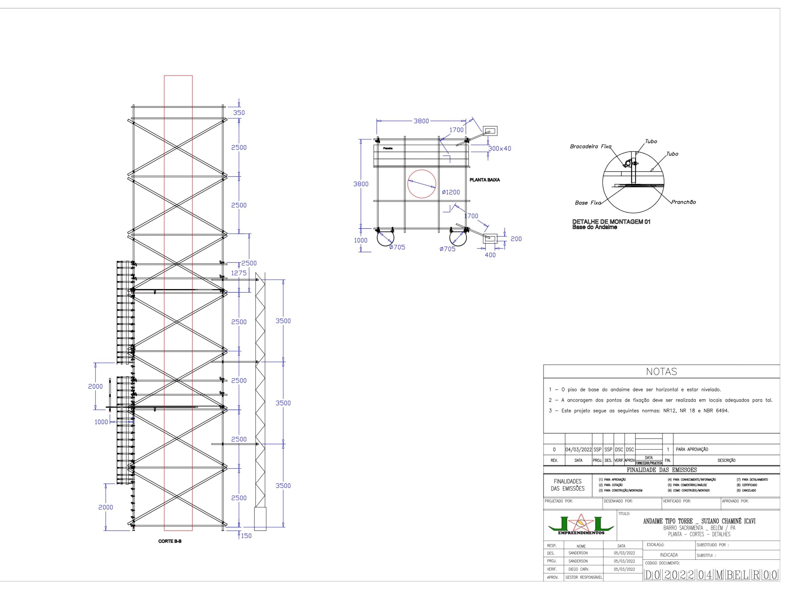
Desenho técnico de engenharia da JL Empreendimentos para andaime tipo torre na Área de HBSA, com cortes A-A e B-B, planta baixa e detalhes de montagem da base.

Memoriais de Cálculo para Andaimes na HBSA – JL Montagem

OSP Engenharia foi contratada pela JL Montagem e Manutenção para o desenvolvimento de andaimes especiais destinados à manutenção industrial. Os projetos atenderam gigantes do setor como HBSA Vila do Conde, Suzano e Hidrovias do Brasil.

  • Projeto de Andaimes Tipo Plataforma e Torre: Dimensionamento para manutenção de grande porte;
  • Análise de Resistência e Flambagem: Cálculos técnicos para garantir estabilidade sob carga;
  • Memorial de Cálculo de Estruturas Temporárias: Validação técnica conforme normas de segurança;
  • Engenharia de Segurança em Altura: Foco em soluções operacionais com zero incidentes;
  • Emissão de ART: Garantia legal e técnica de todos os serviços prestados.

Deixe um comentário

O seu endereço de e-mail não será publicado. Campos obrigatórios são marcados com *