Composição de duas fotos exibindo o acabamento de peças metálicas: à esquerda, detalhe da face inferior com vincos estruturais; à direita, montagem interna de canaleta metálica com divisórias.

Tampas Metálicas para Fornos ALBRAS – Metal Renascer

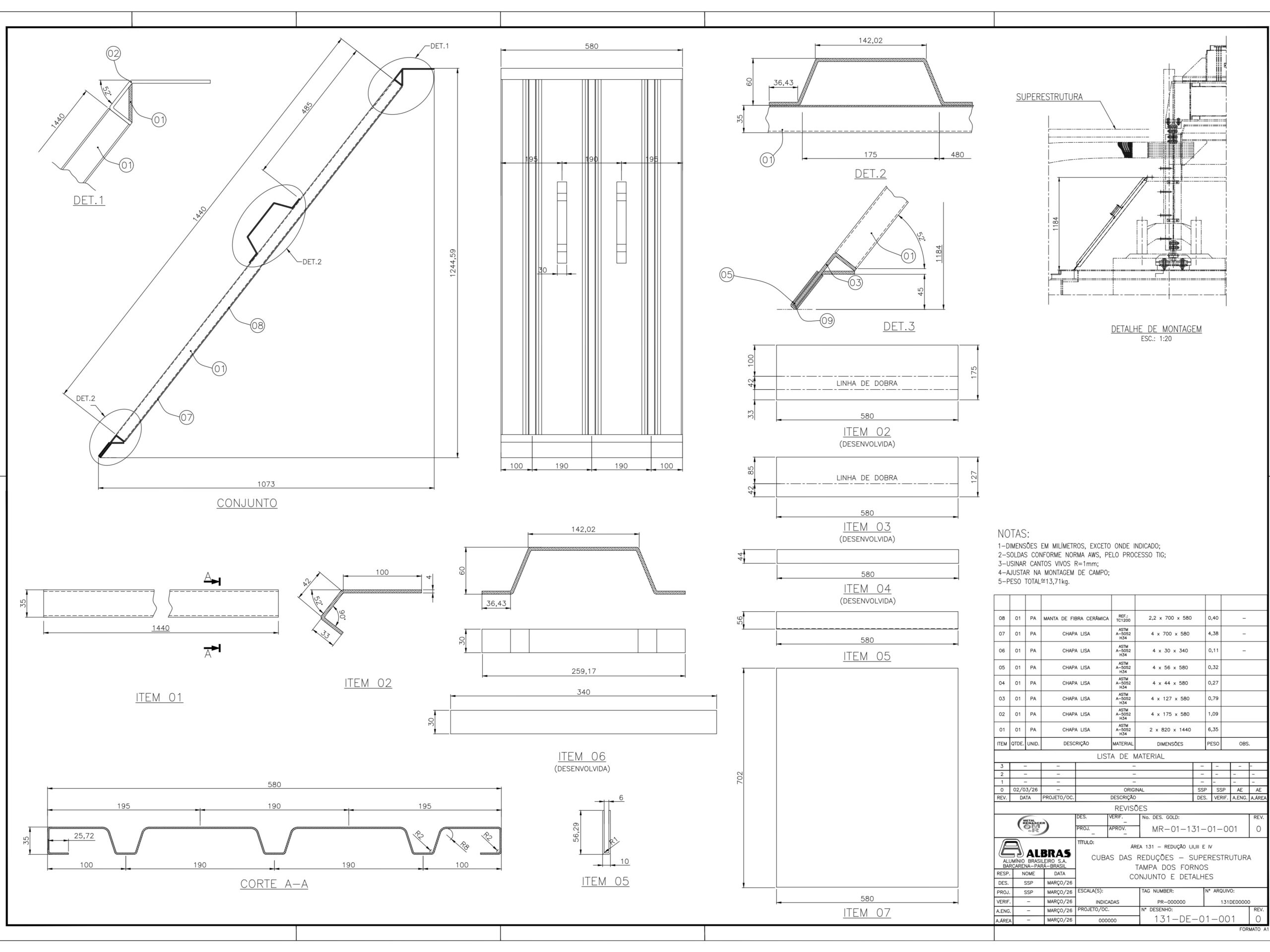
OSP Engenharia foi contratada pela Metal Renascer para o desenvolvimento de tampas metálicas destinadas aos fornos industriais da ALBRAS. O projeto exigiu alta precisão para suportar condições de temperaturas elevadas.

  • Projeto Estrutural para Temperaturas Elevadas: Análise de resistência térmica e mecânica;
  • Cálculo de Resistência e Flambagem: Validação de perfis e chapas sob condições operacionais;
  • Detalhamento Técnico CAD: Elaboração de projetos completos para fabricação e soldagem;
  • Especificação de Materiais Especiais: Seleção de insumos para durabilidade em ambientes críticos;
  • Emissão de ART: Garantia legal e técnica de todos os serviços prestados.

Deixe um comentário

O seu endereço de e-mail não será publicado. Campos obrigatórios são marcados com *